thiết kế nội thất căn hộ Masteri Centre Point

thiết kế nội thất căn hộ Masteri Centre Point

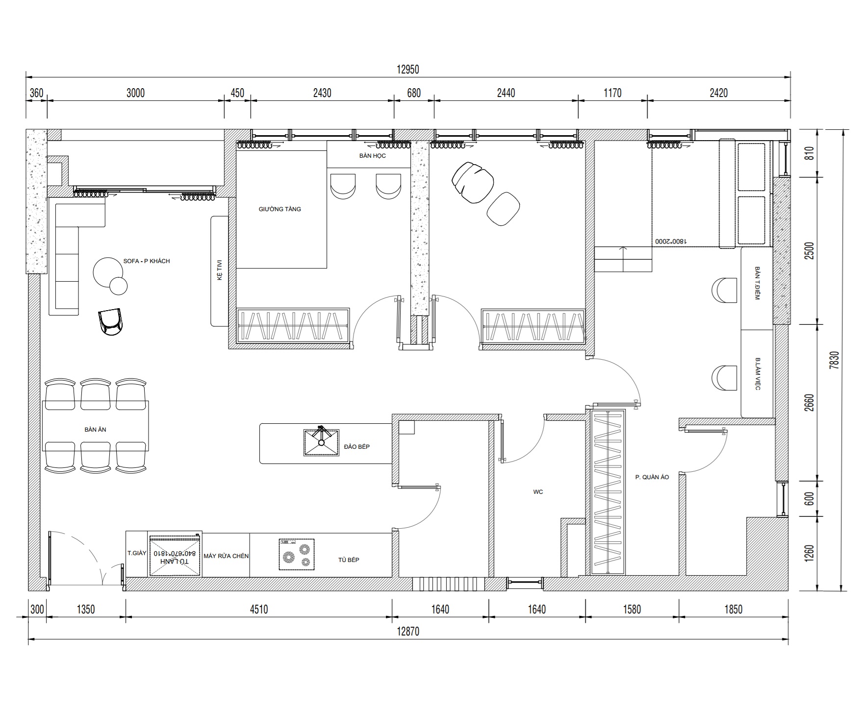
01 Thông tin dự án

Dự án: Masteri Centre Point

Vị trí: Quận 9

Diện tích: 3PN

Hạng mục: Thiết kế & thi công nội thất trọn gói

Phong cách: hiện đại

THIẾT KẾ NỘI THẤT PHÒNG KHÁCH HIỆN ĐẠI

PHÒNG BẾP HIỆN ĐẠI TIỆN NGHI

Category

chung cư/căn hộ

Contact Me on Zalo